- A total of 816 units and total of 6 blocks (1 to 5 Bedroom)
- 4 blocks of 17 storeys and 2 blocks 18 storeys
- Large grounds dedicated to landscaping connected by a pedestrian bridge
- Sky connector / sky garden in 4 of the blocks with comprehensive facilities
- Conservation clubhouse
- Unobstructed west south and east views
- Lux provisions in all units: VZUG, Franke, Laufen, Gessi, Tece
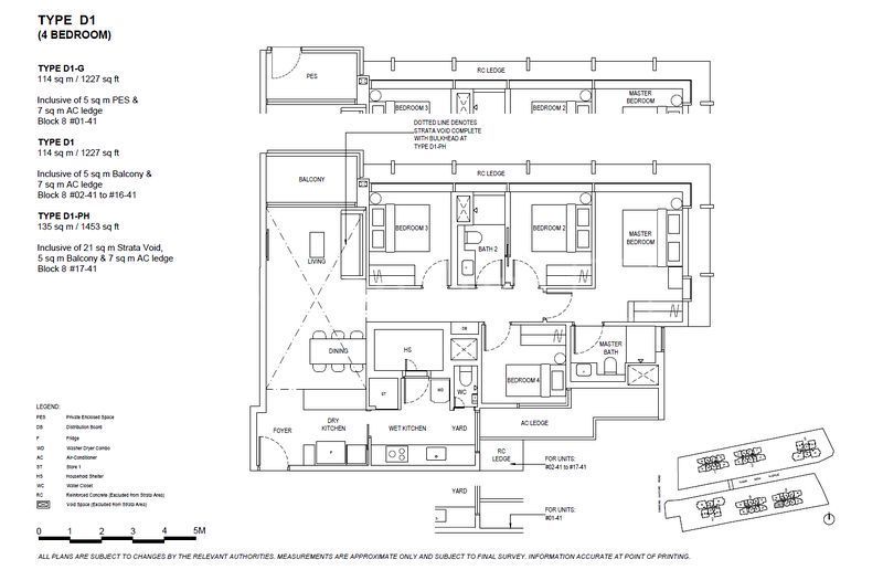
Unit Mix
- 1BR S / 52sqm / Total 68 units
- 2BR / 60 to 62sqm / Total 170 units
- 2BR S / 65 to 67sqm / Total 136 units
- 3BR Compact / 81 to 89sqm / Total 102 units
- 3BR / 99 to 101sqm / Total 136 units
- 4BR Compact / 114 to 120sqm / Total 68 units
- 3BR S w/Pte Lift / 114 to 116sqm / Total 72 units
- 4BR U w/Pte Lift / 157sqm / Total 32 units
- 5BR w/Pte Lift / 176sqm / Total 32 units
Call 9850XXXX Now To Enquire.