✨ 项目亮点
📍 格兰芝路10号, 第10邮区 | 永久地契 | 2026年12月交房
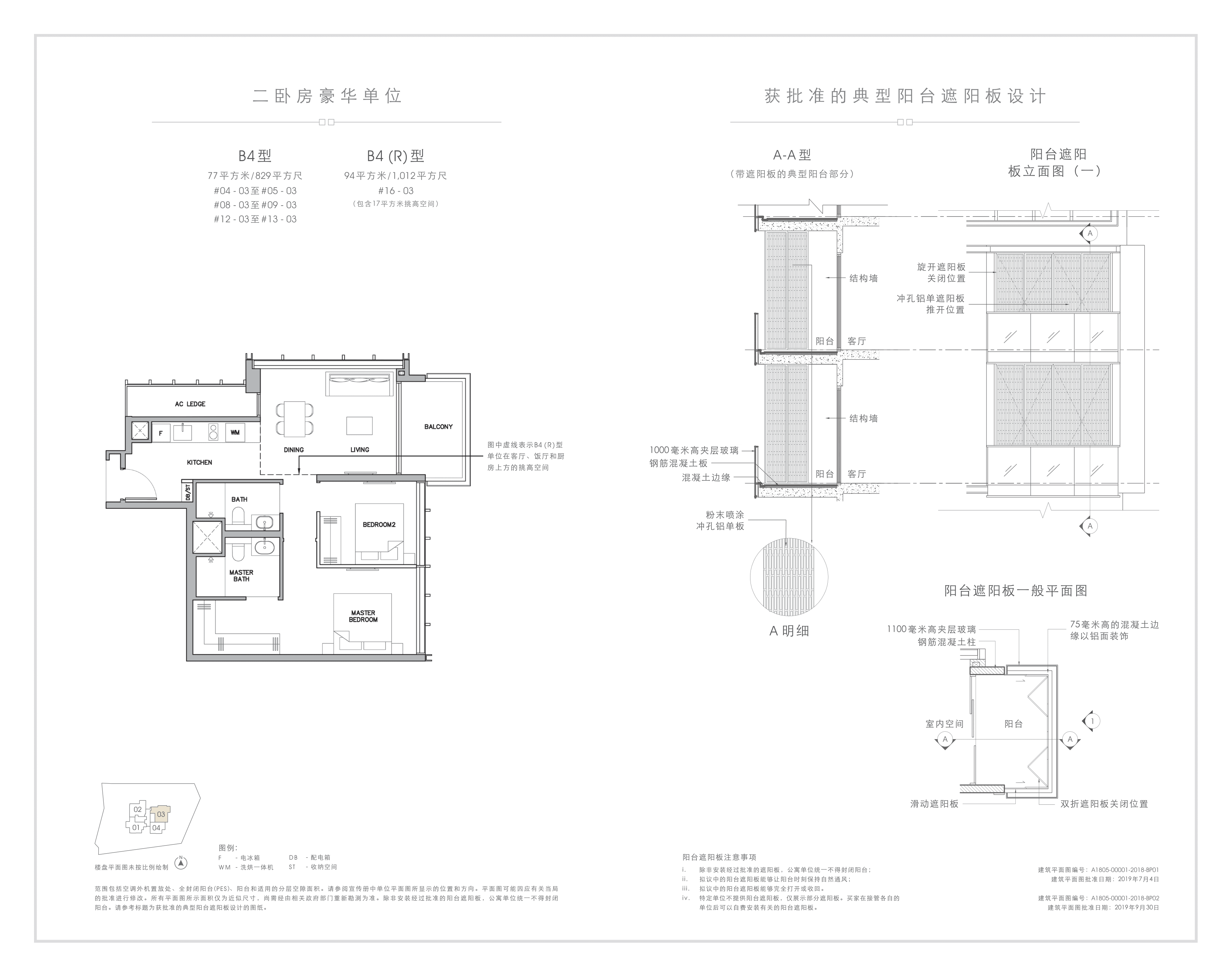
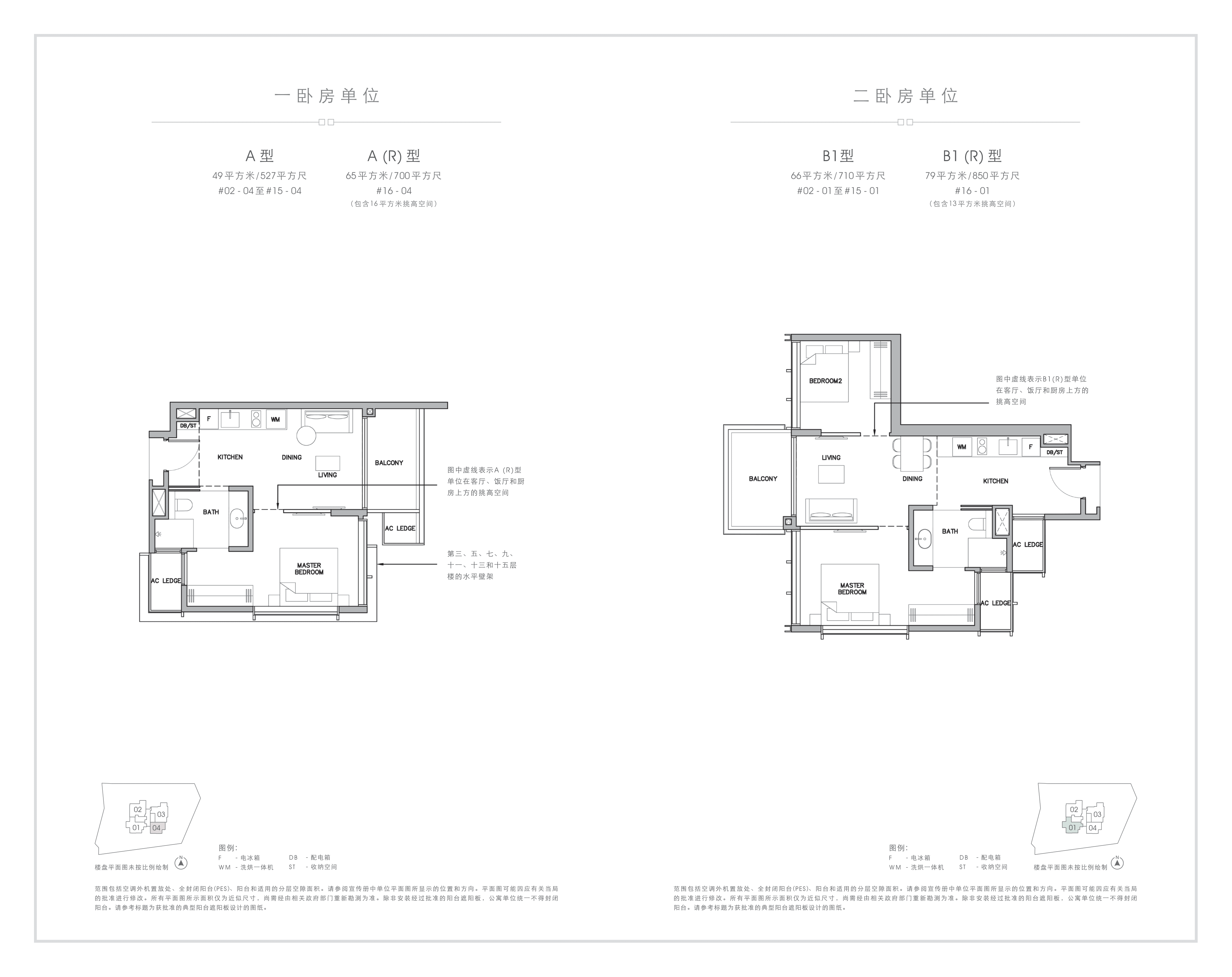
🏠 在售户型 (限量发售)
户型 面积 (平方英尺)
1卧房 527 – 700 sq ft
2卧房 710 – 850 sq ft
2卧房 (premium) 764 – 926 sq ft
📍 周边亮点
交通: 步行3分钟至乌节林荫道地铁站 (汤申-东海岸线)
购物: ION Orchard (10分钟步行) • 高岛屋 (5分钟车程)
医疗: 伊丽莎白医院 (6分钟车程)
🏫 学校: 1公里内
立化小学 (新加坡前50强)
亚历山大小学
🏫 学校: 1-2公里:
英华小学(附小)
圣玛格烈小学
彰德小学
查茨沃斯国际学校 (IB课程)
🛠️ 装修标准
厨房: Gaggenau电器 • 石英石台面
卫浴: 意大利大理石 • Hansgrohe五金
智能家居: 灯光/空调自动化控制
📊 投资亮点
✔️ 租赁潜力: 外籍人士与企业租客需求旺盛
✔️ 资本增值
✔️ 永久地契优势: 世代传承的珍贵资产
---------------------------------------
📅 预约看房 ~ 微信 @ homeswithvikki
---------------------------------------
Grange 1866 | Freehold Luxury Residences in Orchard
📍 Prime District 10 | Freehold | TOP 2026
🏠 Available Unit Types (Limited Units Remain)
・1-Bedroom (527 sqft)
・2-Bedroom (710 - 926 sqft)
・2-Bedroom Premium (764 - 926 sqft)
✨ Why Choose Grange 1866?
✅ Ultra-Prime Location:
Near to Orchard Boulevard MRT (TE Line)
8-min drive to CBD / 10-min walk to ION Orchard
🏫 Schools <1km
River Valley Primary (Top 50)
Alexandra Primary
🏫 Schools 1-2km
Anglo-Chinese School (Junior)
St. Margaret’s Primary
Zhangde Primary
Chatsworth International (IB)
✅ Exceptional Specifications:
German Gaggenau kitchen appliances
Marble flooring in living areas & master baths
Smart home automation system
✅ Exclusive Lifestyle:
50m lap pool & private cabanas
Residents' lounge with panoramic city views
📊 Investment Highlights
✔️ Rental Potential: High demand from expats & corporate tenants
✔️ Capital Growth
✔️ Freehold Advantage: Timeless asset to preserve family wealth
🏙️ Neighborhood Amenities
Shopping: ION Orchard, Wheelock Place, Paragon
📅 Exclusive Viewings Available
WhatsApp Vikki at [ 878 one one 008 ]