🏡 Otto — 更美好的生活,从这里开始
由知名开发商【Hoi Hup Realty】与【Sunway】联合打造,Otto 是新加坡首个无车生态小镇,专注绿色环保与可持续发展理念,缔造以社区为核心的生活空间。
🌿 项目特色
✔ 首个无车小镇:提倡步行与骑行,打造健康生活方式
✔ 仅限量 600 套单位,私密宁静
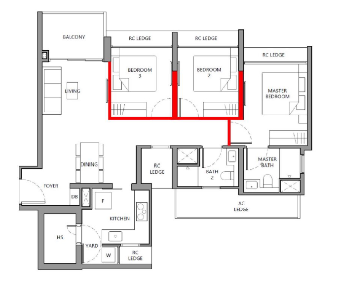
✔ 宽敞 3 至 4 卧户型,适合家庭居住
✔ 完善公寓设施,满足各年龄段需求
🚇 便捷交通
📍 步行 4 分钟可至登加公园地铁站与武吉巴督西地铁站
📍 靠近两大未来核心发展区:裕廊湖区与裕廊创新区
🏫 优质教育资源
🎓 距伊丽莎白公主小学不到 1 公里
🎓 距未来的ACS 小学不到 2 公里
💰 价格信息
价格仅供参考,以实际开盘为准。
开盘期间尊享开发商直销优惠!
更多详情可游览以下网站
https://www.ottoplace-tengah.com/
📞 立即联系
Aster Ng @ 9185 1673
预约专属看房时段,抢先体验未来生活方式!