Subsale! Be the first owner to live in the unit!
Suitable for Families for own stay or for investment
Don't have to wait for long construction duration
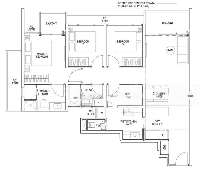
3 bedrooms Flexi with 3 bathrooms
(Flexi can be used as study room, helper's room or storeroom)
Functional layout with balcony at living and master bedroom
Dry kitchen and wet kitchen.
Right above the MRT station, shorter walk compared to other blocks
Located just above Piccadilly Galleria Mall, residents enjoy direct access to retail shops, dining options, and banking services. City Square Mall is a sheltered 3-minute walk away. Plaza Singapura, Raffles City, and the Orchard Road shopping belt are only a few MRT stops from the development. The 24-hour Mustafa Centre is also nearby.
Enjoy easy access to lifestyle destinations like Marina Bay Sands, Gardens by the Bay, Singapore Sports Hub, and Resorts World Sentosa.
Farrer Park MRT and Connexion are right at the doorstep. It’s just one stop to Little India MRT for the Downtown Line, two stops to Dhoby Ghaut MRT for the North-South and Circle Lines, and five stops to Outram MRT for the East-West and Thomson-East Coast Lines. Major expressways like CTE and PIE are also easily accessible.
A short walk takes you to the community club, local eateries, a wet market, hawker centre, supermarkets, and the upcoming sports centre.
The development is close to reputable schools such as Farrer Park Primary, St. Margaret's Primary, St. Joseph’s Institution Junior, Hong Wen School, and Bendemeer Primary.
This project holds strong capital appreciation potential, especially with the upcoming GLS site at Dorset Road—a 113,021 sqft land parcel that could yield about 430 units.
Take advantage of this prime opportunity to invest in private property before prices climb higher.
Contact Gina Lim 林利鸝 at 8.6.7.1.8.7.7.8 for viewing.