NO COV! below valuation, must sale!
High Floor | Corner Unit | Quiet | Green View Facing Chinese Garden
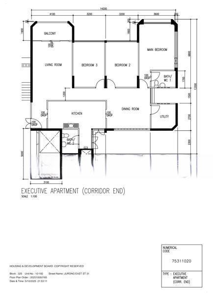
Corner unit — maximum privacy with a large exclusive space
Super quiet environment — peaceful and away from road noise
High floor — bright, breezy, and well-ventilated
Master bedroom with unblocked greenery view facing Chinese Garden
Beautifully renovated kitchen — unique owner’s design, not found in other units
Spacious layout — separate living and dining areas
Well-kept, move-in condition
Most walls are non-structural — flexible for renovation and customization
Ready for immediate submission
Convenient Location:
Walking distance to eateries, supermarkets, Jurong Swimming Complex and Jurong Polytechnic
2–3 bus stops to Yuhua Market (Michelin Guide food stalls)
10–15 mins walk to Chinese Garden MRT (EW25)
Direct bus to Orchard
Within 1 km:
Jurong Primary, Shuqun Primary, Canadian International, Fuhua Secondary, Jurongville Secondary
Within 2 km:
Princess Elizabeth Primary, Yuhua Primary
Size: 1,518 sq ft
3 Bedrooms + 1 Utility (can be used as 4th bedroom)
99-year Leasehold | Built 1984
低于估价出售,NO COV
静谧角落里的稀有绿景大户型, 无需延期,不要错过!
高楼角落单位,环境安静,无遮挡绿景视野
主人房可远眺 Chinese Garden
厨房经屋主精心装修,独一无二
格局方正宽敞,客厅与餐厅分区
光线充足,通风良好,即可入住
周边生活便利,步行可达食阁、超市与地铁
Cindy @9*****for viewing.