Showflat available by appointment, contact developer's appointed sale agent Davon9*****for more info and appointment.
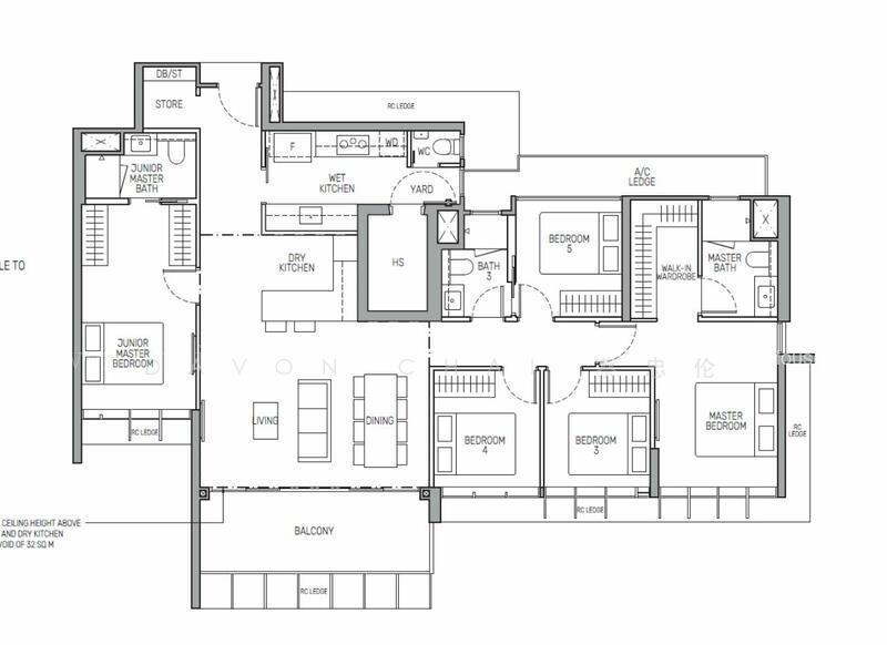
The Myst is a 99-year leasehold new launched condominium located along Upper Bukit Timah Road in District 23. This development will comprise 408 units with multiple unit configurations. The Myst is situated in a quiet enclave of natural landscapes and environments, offering residents the opportunity to enjoy both the convenience of modern living and the beauty of nature. Consist of 1BR+S to 5 Bedroom
The Myst Highlights
- Easy access to the MRT network ~ A short walk 5 min from Cashew MRT station and less than a 10-min walk from Bukit Panjang Integrated Transport Hub.
- Close proximity to nature ~ Residents can enjoy proximity to the Rail Corridor and Bukit Timah Nature Reserve near the development.
- A wide array of schools nearby ~ A short drive from several schools like Bukit Panjang Primary School and Greenridge Secondary School.