Serious seller
Call now9*****to schedule your viewing slot
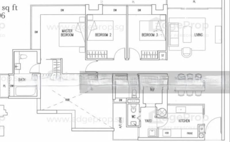
Spacious 3 bedroom, no wasted space on balcony.
One Devonshire is a freehold condominium development that is located at Devonshire Road in District 10. It is a condominium project that was completed recently. The project was completed in 2012 with a total of 152 units available for sale or rent. The condominium development is located close to public transportation that allows residents to move easily from one place to another from the condominium. There are many shops and amenities close to the condominium development which would ease the process for residents and they do not need to go far to find what they need.
There is a number of public transportation close to One Devonshire that residents can make use of. The closest MRT stations are Somerset MRT, Orchard MRT and Dhoby Ghaut MRT. The closest bus stops are located at National Youth Council, St Thomas Walk, Somerset Station, Winsland House, The Cosmopolitan and Riva Lodge. For those with vehicles, the shopping district located at Orchard Road can be easily accessed via Killiney Road, Somerset Road and Devonshire Road in less than 5 minutes.
Schools and Education Institute near One Devonshire
- Chatsworth International School Orchard Campus
- Etonhouse Pre School Robertson Walk
- Iss International School
- River Valley Primary School
- Swedish Supplementary Education School
Shopping Malls and Shops near One Devonshire
- FairPrice Finest 111 Somerset
- Cold Storage Paragon
- Gourmet Market
- FairPrice Orchard Grand Court
- Uncle Miki