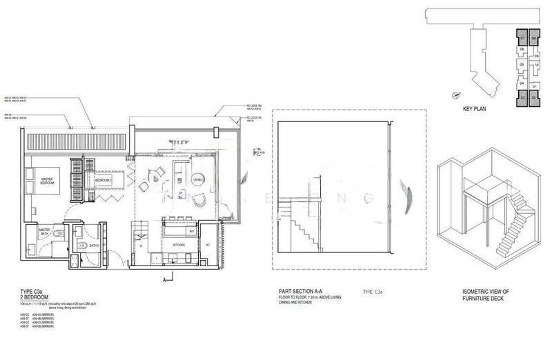
GENERAL INFORMATION:
- District: 9
- Unit Type: 2 Bedroom Loft with High Ceiling
- Description: Corner Unit with 180 Degree Views
- Possession: Selling Vacant Possession
- Maintenance Fee: $610.50 monthly
* Subject to Availability, Changes and Confirmation
DISCLAIMER:
All information provided are in the best knowledge of the salesperson, subjected to a final survey and confirmation. In addition, pictures and videos are for illustration purposes only and may not reflect the current condition of the unit. Collectively, they shall not form part of any offer or contract nor constitute any warranty by the salesperson and shall not be regarded as statements or representations of fact.