- Discover a Home Integrated with Nature & New Possibilities
- Developed by the Award-Winning GuocoLand & Hong Leong Holdings
- Don’t miss the 1st MEGA Mover Advantage at Springleaf
- Competitive pricing & fantastic layouts
- Unique integration with lush greenery
- Huge growth potential from surroundings developments
- Private enclave living
Project Highlights:
- 941 residential units in 5 stunning blocks & low rise conservation block
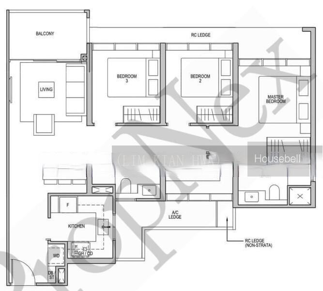
- 1 to 5 bedrooms
- Full condo facilities, including 3 pool, tennis court & more
- Just 100m from Springleaf MRT (TEL)
- Close to future malls, wildlife reserves, and major hubs
PM for more info
Matthias
Hp number:9*****